1
/
of
4
Calibration Block - Mini Phased Array
Calibration Block - Mini Phased Array
Regular price
$495.00 AUD
Regular price
Sale price
$495.00 AUD
GST included.
https://ndtsales.com.au/policies/shipping-policy
Calibration Block - Mini Phased Array
Specfication:
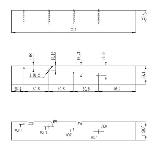
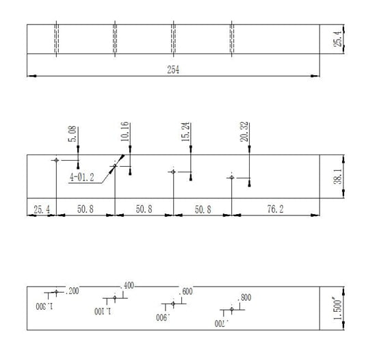
The Mini Phased Array Calibration Standard (PACS) Block is a smaller, more portable version of the original PACS Block. The block includes a total of 4 holes at 3/64" diameter drilled through the 1.000" width, located at .200", .400", .600", .700", .800", .900", 1.100" and 1.300" from the respective scanning surface.
Dimensions:
1.500" Height x 1.000" width x 10.00" Length
Material: 1018 Steel
Package includes:
1 calibration block
1 certificate
1 block case
Share



